DomoPhoto
Киев, Большая Васильковская улица, 106
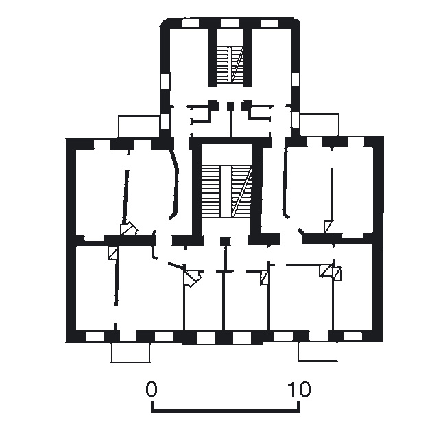
План 2 — го этажа

Звід пам'яток iсторiї та культури України. Енцiклопедичне видання. Київ: 2011. Кн. 1, ч. 3, стр. 1921
Прыслаў SergeyUA · Киев           Дата: 2011 г. (прыкладна)

Інфармацыя аб фатаграфіі

Ліцэнзія: CC-BY-NC 4.0
Апублікавана 12.01.2017 16:34 MSK
Праглядаў — 537
Падрабязная інфармацыя

Адзнака

Рэйтынг: 0

Большая Васильковская улица, 106

Месцазнаходжанне:Украина, Киев, Большая Васильковская улица
Серыя:Проекты 5- и более этажных домов до 1920 года
Павярховасць:5
Стыль:Модерн
Бягучы стан:Выкарыстоўваецца
Назва/прызначэнне:Доходный дом
Доходный дом, нач. XX вв.

[КИ — 1, стр. 1920]

Параметры здымкі

Имя автора:Administrator
Паказаць увесь EXIF

Ваш каментарый

За абмеркаванне палiтыкi будзе выносiцца бан на 1 месяц
Увайдзіце або зарэгіструйцеся, каб пакідаць каментарыі.