DomoPhoto
Kyiv, Большая Васильковская улица, 34
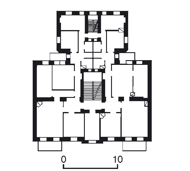
План 2 — го этажа

Звід пам'яток iсторiї та культури України. Енцiклопедичне видання. Київ: 2011. Кн. 1, ч. 3, стр. 1912
Hochgeladen von SergeyUA · Kyiv           Datum: . 2011 (ungefähr)

Bildinfo

Lizenz: CC-BY-NC 4.0
Veröffentlicht 12.01.2017 16:34 MSK
Aufrufe — 493
Detailinfo

Bewertung

Rating: 0

Большая Васильковская улица, 34

Ort:Ukraine, Kyiv, Большая Васильковская улица
Serie:Проекты 4-этажных домов до 1920 года
Bauherr:Моссаковский А. М.
Stockwerke:4
Bauende:189х
Ist-Zustand:Wird benutzt
Beschreibung:Доходный дом
Доходный дом статского советника А. М. Моссаковского, кон. 1890 — х гг.

[КИ — 1, стр. 1912]; [ВК/1899]

Aufnahmeparameter

Artist Name:Administrator
Gesamten EXIF zeigen

Ihr Kommentar

Politikdiskussionen werden mit 1 Monat Sperre bestraft
Sie sind nicht angemeldet.
Nur angemeldete Benutzer dürfen Kommentare abgeben.