ДомоФото
Киев, Улица Петра Сагайдачного, 17. Киев — Чертежи и планировки
Источник: Архитектура СССР, № 4, июль-август 1989 г., С. 5
Прислал Antique · Одесса           Дата: 1989 г.

Информация о фото

Лицензия: CC-BY-SA 4.0
Опубликовано 13.11.2020 04:34 MSK
Просмотров — 814
Подробная информация

Оценка

Рейтинг: 0

Улица Петра Сагайдачного, 17

Местонахождение:Украина, Киев, Улица Петра Сагайдачного
Серия:Вычислительные центры
Архитекторы:Розенберг В., Юдина В., Файнберг Р., Судакова С.
Этажность:4
Строительство:1886—1987
Стиль:Постмодернизм
Текущее состояние:Используется
Название/назначение:Республиканский информационно-вычислительный центр министерства хлебопродуктов УССР — Банк "Родовид"
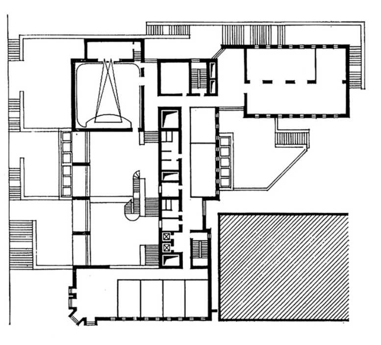
Республиканский информационно-вычислительный центр министерства хлебопродуктов УССР, арх. Розенберг В., Юдина В., инж. Файнберг Р., Судакова С., проект: 1978 — 1983 гг. Строительство: 1986-1987 гг.
Проект выполнило главное управление "Киевпроект".

Реконструкция для банка "Родовід", арх. Смирнов В. П., 2002 г.

"Несмотря на время проектирования перед нами — сегодняшняя постройка. Выразительная геометрия объёмов, больших и малых проёмов, острота силуэта, деловитость членений крупных общественных пространств и прочие ритмы рабочих помещений сочетаются в нём с киевской архитектурной живописностью. Фасад по улице (ещё недавно носящей имя Жданова) сдержан, сомасштабен ей, связан ритмически с соседним жилым домом, в то же время чуть заглублен относительно фронта домов и этим подчёркивает недавность своего появления. Боковой фасад, раскрытый на рельеф, решён свободнее, крупнее, масштаб решительнее. План, внутренняя структура дома вполне обнаруживают ясность архитектурных мотивов. Весёлый, свободного рисунка угол дома снижает может быть излишнюю серьёзность архитектурной композиции, вносит так необходимую сегодняшнему архитектору ноту самоиронии, шутовства, ёрничанья" [Архитектура СССР, № 4, июль-август 1989 г.].

Ваш комментарий

За обсуждение политики будет выноситься бан на 1 месяц.
Вы не вошли на сайт.
Комментарии могут оставлять только зарегистрированные пользователи.